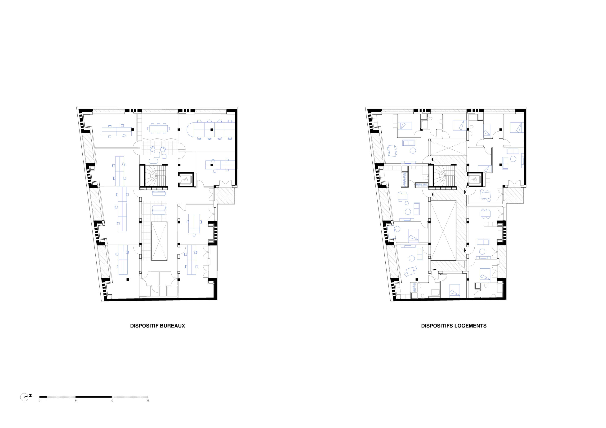
BAM Bureaux reversibles logements
- Maitre d’ouvrage : 13 HABITAT
- Maitre d’œuvre : PANARCHITECTURE
- Site : Marseille (13)
- Programme : construction neuve d'un immeuble de bureaux à réversibilité anticipée en logements et stationnements, rue d'Alble Marseille 12e
- Label & performance : RE seuil 2025 - BDM
- Type de Mission : mission complete
- Cout des travaux : 2 720 000 € HT
- Surface : 970 m² SDP
- Planning : 2025-2027
- Livraisons : 2027
- statut : en-cours






